Empredimientos - Venta de pozo
En Venta
USD367.200
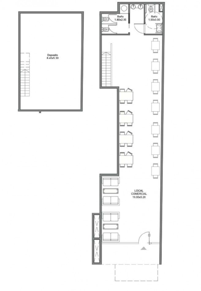
Local Comercial
Local en venta a pasos del Alto Palermo Entrega 2027
Código: 198070

Julián Álvarez 1822, C1414 Cdad. Autónoma de Buenos Aires, Argentina, Palermo, Capital Federal, Argentina.

Compartir esta Propiedad

Descripción de la Propiedad

Local Comercial en Venta – Palermo
Superficie total: 100 m² en planta + 44 m² de depósito en subsuelo Frente: Vidriera de 5,20 m a la calle Apto gastronomía – a pasos del Shopping Alto Palermo
Ubicación estratégica
En el corazón de Palermo, rodeado de propuestas gastronómicas, comercios y excelente conectividad.

Zona de alto tránsito peatonal y vehicular.

Obra y entrega
Edificio en construcción, entrega estimada 2027

Obra en marcha con visitas disponibles

Detalles premium: pisos símil madera, DVH con marcos negros, griferías y sanitarios de primeras marcas

Financiación
30% al boleto

24 cuotas

Confianza respaldada
Constructora con trayectoria sólida y obras activas para recorrer

Seguridad jurídica y respaldo institucional

Opciones adicionales
Unidades con patio

Departamentos de 1, 2 y 3 ambientes

Imágenes ilustrativas – Render no contractual

Mas detalles
Ubicación