Empredimientos - Venta de pozo
En Venta
USD109.000
Casa
VENTA en pozo NO APTO CREDITO Casa de dos dormitorios en San Sebastian Area 13
Código: 198019

San Sebastian, Escobar, Buenos Aires, Argentina.

Compartir esta Propiedad

Descripción de la Propiedad

Venta Casa – NO APTO CRÉDITO
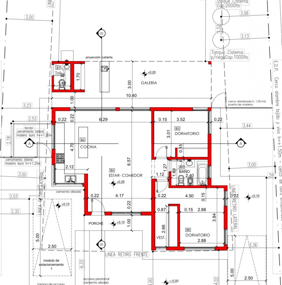
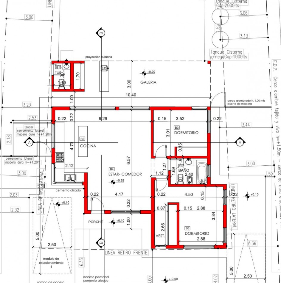
Casa en obra de 86 m² cubiertos + 27 m² de galería, sobre lote de 602 m².
Interior: amplio hall de acceso, living comedor apaisado con cocina integrada y moderna isla central. Dos dormitorios de generosas dimensiones, el principal con vestidor. Un baño completo.
Exterior: galería techada con parrilla y baño de pileta, ideal para reuniones y disfrute al aire libre.
Detalles de categoría: aberturas de aluminio con doble vidrio, calefacción por losa radiante con caldera dual.
Entrega estimada: diciembre 2026
Precio promocional en obra
¡Consultá opciones de financiación!

Mas detalles
Ubicación